|
Pour un musicien,
le studio d'enregistrement est, tout comme la scène, une
étape incontournable car c'est là que seront gravées
à jamais ses oeuvres. C'est tout d'abord un investissement
financier assez lourd mais c'est surtout plusieurs jours, plusieurs
semaines de travail très intense où le musicien se
retrouve à devoir réaliser le meilleur de son art
en alliant ses exigences et les contraintes de temps mais aussi
techniques inhérentes à l'enregistrement en studio.
Il doit cohabiter pendant toute cette période avec un ou
plusieurs techniciens et la qualité relationnelle de cette
cohabitation est aussi capitale que la qualité du matériel
utilisé. Car, à moins de tomber sur le plus nase des
studios, techniquement on peut s'attendre à avoir affaire
à des professionnels pour qui le son est une passion et qui
utilisent le matériel qui convient à une bonne qualité
du résultat attendu.
 |
|
François
Sciortino et Fabrice Legras
|
Il n'en est
pas de même de la qualité des relations : écoute
et conseil du musicien, de ses exigences et de ses doutes sont primordiaux.
S'il n'existe pas un minimum de complicité entre le technicien
et le musicien, le résultat en sera inévitablement
altéré.
Lorsque je suis arrivé au studio Valvins pour y rencontrer
François en cours d'enregistrement de son dernier album,
toutes les prises étaient réalisées, il ne
restait plus que le mix et le mastering. Je pensais que pour François
le plus gros de son travail était fait. Je me suis trompé
car en l'écoutant parler, je sentais l'angoisse du musicien
insatisfait, toujours à la recherche de la perfection, à
écouter en boucle chacune des prises avec une attention que
l'on ne s'imagine pas. Il disséquait chaque note, chaque
petite imperfection (pour lui car pour nous c'est imperceptible)
était notée dans un coin de son cerveau en ébullition.
Toutes ses exigences, il devait en faire part à Fabrice,
responsable du studio Valvins.
Vous imaginez la pression sur les épaules de Fabrice. Bon,
il a de quoi encaisser le Fabrice qui est du même gabarit
que Manu Galvin en plus petit mais quand même !!! J'ai
alors été surpris de voir à quel point la complicité
entre Fabrice et François faisait que tout coulait de source
et que chaque problème trouvait sa solution. Le résulat
est là, écoutez l'album et vous en jugerez par vous
même !
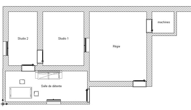
Pour parler de l'actualité du studio qui est en plein chantier,
la nouvelle régie fera 20m² + 5 m² pour la salle machine (salle
des ordinateurs, alimes, protools … bref tout ce qui est bruyant)
ce qui laissera l’ancienne régie en cabine voix ou amplis guitare.

Le studio fonctionne en association 1901 avec 3 ingénieurs son professionnels
Fabrice Legras, Yann Invernizzi et Romain Dambrine.
Ils enregistrent tous les styles de musique.
Une console analogique Big44 ou SSL 4000 sera disponible dans le
courant de l'année. Ils utilsent Protools et HD24. Artistes
récemment enregistrés : Folkom, Ward Léonard,
les Invitées, François Sciortino,100
Scrupules, Orpheus, zwapp, No return,
7ac etc...
Site
Web du studio Valvins
Jacques Carbonneaux
le 20/10/2006
|